Bürgerhaus mit Kindertagesstätte
Mainz-Hechtsheim
Beiden Bauvorhaben ähneln sich in Wirkung und
Konstruktion. Auch die Anlage der inneren Struktur ist vergleichbar, passt sich
aber den örtlichen Gegebenheiten und unterschiedlichen Nutzeranforderungen an.
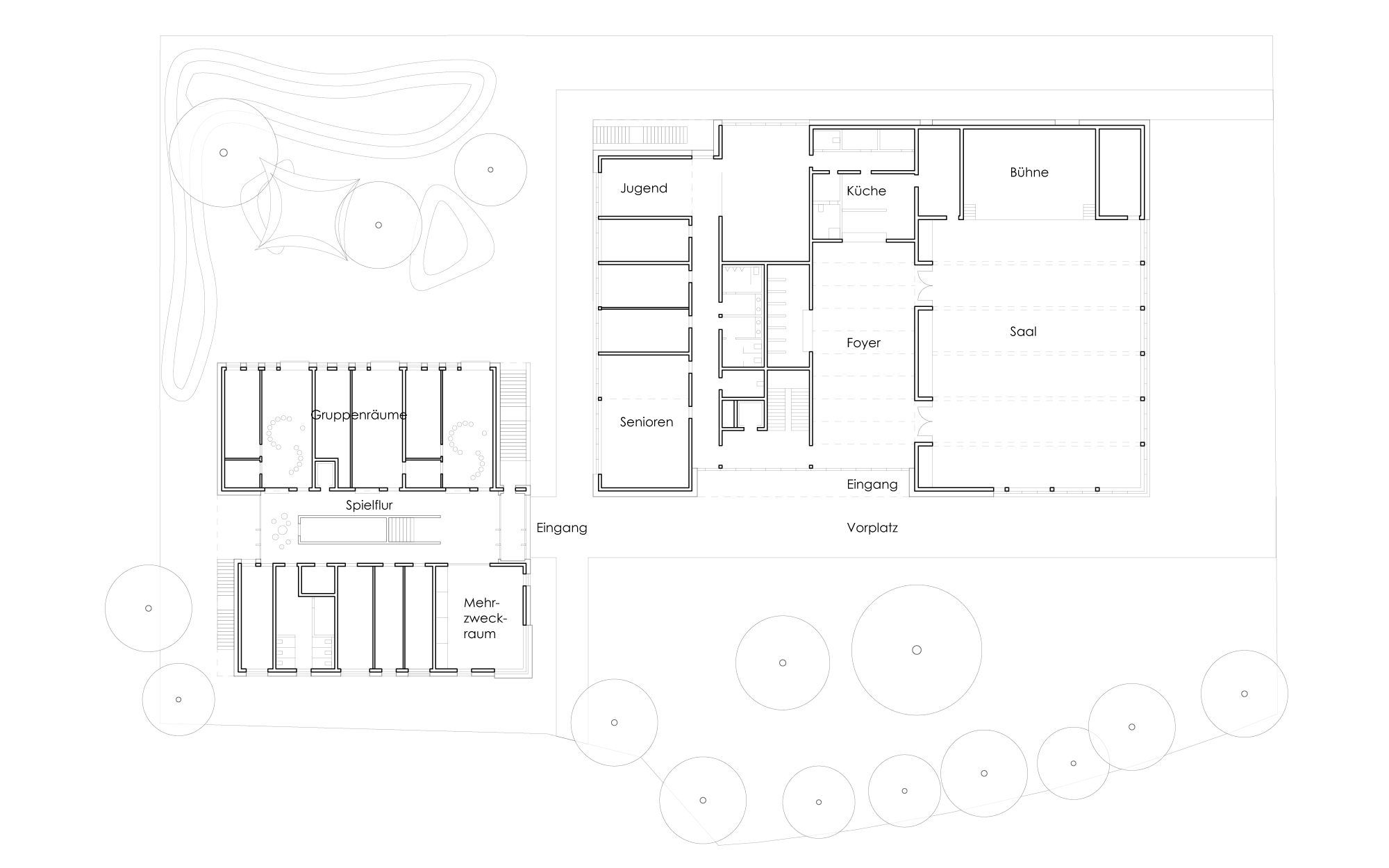
Das Raumprogramm umfasst ein Foyer mit Saal und Bühne für 480 Personen, Umkleiden, Küchenbereich mit Lager- und Kühlräumen, Räume für Jugendgruppen und Seniorenbetreuung. Die besonderen Qualitäten der Architektur liegen im detailgenauen Umgang mit dem Bauvolumen. Der Saal wird seitliche Öffnungen auskömmlich mit Tageslicht versorgt. Die Bürgerhäuser zeichnet ein, insbesondere in der heutigen Zeit, hoher Anspruch an die Ökologie aus. Eine ganzheitliche Betrachtung von Konstruktion, Material und Licht, die dem Besucher ein angenehmes Umfeld erschafft. Dadurch erzeugen wir eine Nachhaltigkeit, jenseits von Stilen, Moden und Paradigmen.
︎︎︎ siehe auch Bürgerhaus mit Kindertagesstätte Mainz-Finthen
Das Raumprogramm umfasst ein Foyer mit Saal und Bühne für 480 Personen, Umkleiden, Küchenbereich mit Lager- und Kühlräumen, Räume für Jugendgruppen und Seniorenbetreuung. Die besonderen Qualitäten der Architektur liegen im detailgenauen Umgang mit dem Bauvolumen. Der Saal wird seitliche Öffnungen auskömmlich mit Tageslicht versorgt. Die Bürgerhäuser zeichnet ein, insbesondere in der heutigen Zeit, hoher Anspruch an die Ökologie aus. Eine ganzheitliche Betrachtung von Konstruktion, Material und Licht, die dem Besucher ein angenehmes Umfeld erschafft. Dadurch erzeugen wir eine Nachhaltigkeit, jenseits von Stilen, Moden und Paradigmen.
︎︎︎ siehe auch Bürgerhaus mit Kindertagesstätte Mainz-Finthen
Planungszeitraum: 05.2017 - 08.2018
Bauzeit: 08.2018 - 09.2020
Bauherr: Bürgerhäuser GmbH & Co. KG
Leistungsphasen: 1 – 9
Projektleitung: Albert Urig, Sascha Pawlik
Projektbearbeitung: Roman Abrams, Stefan Werth
Bauzeit: 08.2018 - 09.2020
Bauherr: Bürgerhäuser GmbH & Co. KG
Leistungsphasen: 1 – 9
Projektleitung: Albert Urig, Sascha Pawlik
Projektbearbeitung: Roman Abrams, Stefan Werth









