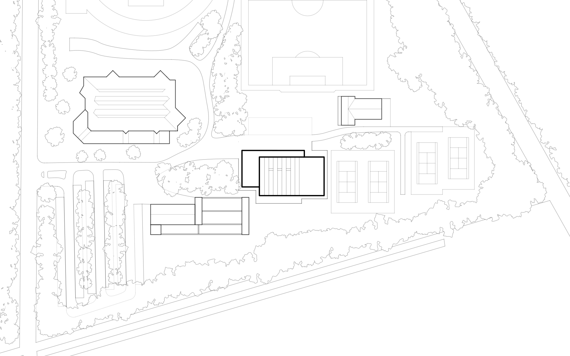
Kulturhalle in Schaidt, Wörth am Rhein
Der Neubau der Kulturhalle Schaidt ersetzt die alte Halle im Ortskern und stärkt als kultureller Spiel - Ort den ländlichen Raum. Die Halle für Veranstaltungen der Vereine schafft in Korrespondenz mit der Sporthalle und dem Haus des Tennisclubs einen Platzraum für die Feste der Ortsgemeinde im Freien. Das Vestibül ohne Außenfassade empfängt die Besucher und öffnet das Haus mit einer transparenten Fassade zum Foyer. Durchblicke durch den Saal zur Terrasse und zum Waldraum erzeugen eine spannende Raumsequenz. Holz als nachhaltiger Werkstoff verankert das Bauwerk mit dem dörflich-alltäglichen Regionalismus. Die einfache und subtile Behandlung der Bauteile nobiliert und erzeugt eine der Bedeutung des Bauwerks entsprechende Grandezza.
Publiziert in:
ARD Landesart: Architekturpreis für Holzbau (3:51 min)
best architects 22 - Auszeichnung
DAM Preis 2022 Nominierung
Artikel des Onlinemagazines Marlowes (10/2020) »Kultur für alle«
Publiziert in:
ARD Landesart: Architekturpreis für Holzbau (3:51 min)
best architects 22 - Auszeichnung
DAM Preis 2022 Nominierung
Artikel des Onlinemagazines Marlowes (10/2020) »Kultur für alle«
Planungszeitraum: 05.2017 - 05.2018
Bauzeit: 05.2018 - 09.2020
Bauherr: Stadt Wörth am Rhein
Leistungsphasen: 1 – 9
Projektleitung: Michael Schanné
Projektbearbeitung: Maryse Parr, Gabriele Völker-Schanné, Philipp Wendel
Fotos: Michael Heinrich, München
Bauzeit: 05.2018 - 09.2020
Bauherr: Stadt Wörth am Rhein
Leistungsphasen: 1 – 9
Projektleitung: Michael Schanné
Projektbearbeitung: Maryse Parr, Gabriele Völker-Schanné, Philipp Wendel
Fotos: Michael Heinrich, München
